
以色列内衣制造商办公室设计-螺旋向上的盘绕空间
Overlapping discs contain offices for Israeli underwear manufacturer
由专筑网李韧,吴静雅编译
该项目位于以色列凯撒里亚,是一家纺织工厂的总部办公大楼,建筑体量由螺旋上升的环形空间环绕而成,形成交错的阳台空间,使用者可以在这里俯瞰周围的美景。
This headquarters for a textile manufacturer in Caesarea, Israel, comprises a group of stacked discs, which are staggered to create balconies overlooking the surrounding landscape.

当地的工作室Auerbach Halevy Architects负责设计这座办公楼以及周边基础设施, Delta Galil成立于1975年,目前已经是全球知名内衣品牌。
这座建筑位于城市南侧的工业区内,毗邻桉树林。
工业园内有各个公司的总部大楼、后勤服务设施、纺织品工厂、设计中心,以及花园。
Local studio Auerbach Halevy Architects designed the offices and manufacturing facility for Delta Galil, an Israeli textile company founded in 1975 that is now a global leader in the design and manufacture of underwear.
The building is located on the company's complex in an industrial area to the south of the city, which is situated next to a grove of eucalyptus trees.
The campus includes the global headquarters, alongside a logistics facility, a sewing factory, a design centre and a large garden.

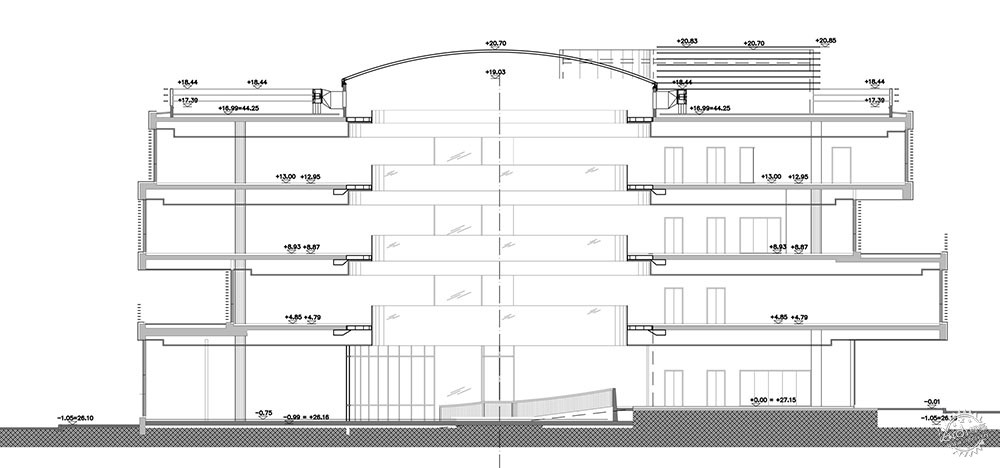
该总部大楼由环形体量盘绕而成,办公区域环绕中央而设置,形成良好的景观视野。
建筑师说:“这座建筑就如同一个巨大的纺织物,盘旋上升,在上部体量舒展开,延伸向仓库。”
The headquarters comprises four stacked circular volumes, with the offices arranged around the perimeter to take advantage of the views from the full-height windows.
"The building resembles fabric spools, one of which spreads out and connects to the logistics warehouse," said the architects in a statement.

一座玻璃连接体量从建筑的上部区域延伸向附近的仓库,其外部覆盖着波纹金属。
在办公大楼的顶部有着一个穹顶形天窗,自然光可以通过天窗进入到室内。而中央区域上下贯通,为各个楼层之间带来视线的联系。
错落的布置方式让每个楼层都拥有不同形态的阳台。部分阳台面向周围工业区,或者面向大海与森林。
A glazed bridge extends from the uppermost level to the adjacent warehouse, which features a more straightforward rectilinear form clad in corrugated metal.
The office building is topped with a domed skylight that allows natural light to flood down to the office levels. The central void is lined with circulation areas and creates a visual connection between the floors.
The staggered arrangement of the levels results in balconies with different views on each floor. Some of the outdoor spaces face towards the surrounding industrial area, while others are oriented towards the sea or the eucalyptus grove.


发散性体量也能够起到很好的遮阳作用,另外建筑外部的百叶窗也能够形成巧妙的光影效果。
这座多层办公大楼是工业区的标志性建筑,相比起来毗邻仓库显得更为低调。
The projecting volumes also help to protect the interiors of the floors below from direct sunlight. Further shading is provided by slender louvres that wrap around the outside of the facades.
The multi-storey office building dominates the campus, while the adjoining warehouse has a more understated, utilitarian presence.

在连接体量的下方有着步行小径、退台景观、水池等绿色空间,这些空间与一层的餐厅相连接。
建筑师说:“办公楼和仓库之间的平衡带来了令人印象深刻的标志性办公大楼和精确的存储空间。”二者共同为这个全球知名品牌服务。
摄影:Uzi Porat
Beneath the bridge linking the two structures, landscaping that includes curving pathways, terraces and ponds connects directly with the ground-floor dining hall.
"The balance between the office building and the warehouse operations resulted in a precise storage space and an impressive and iconic office building," the studio added. "Together they function as a single unit that defines an innovative brand."
Photography is by Uzi Porat.




项目信息:
主创建筑师:Ori Halevy
设计团队:Sharon Ben Shushan, Yuri Michael, Vladi Samanduev, Armand Bruckenstein
室内设计:Studio Ricatti
客户:BST,A Green
Project credits:
Lead architect: Ori Halevy
Design team: Sharon Ben Shushan, Yuri Michael, Vladi Samanduev, Armand Bruckenstein
Interior design: Collaboration with Studio Ricatti
Contractors: BST (core and shell), A Green (interiors)
出处:本文译自www.dezeen.com/,转自专筑网
(该文章来源网络,如有侵权请联系15212443003,我们将第一时间进行删除)